ЖК Industrial (Днепр) от $1000 за м2
Без ограничений после регистрации
ЖК Krona Park II от 890 $/м2, Бровары
ЖК Illinsky House от 3500 $/м2
Лучшие адвокаты найти или добавить
ЖК Kandinsky Odesa квартиры от 2030 $/м2
Клубный дом Nobility квартиры от 3210 $/м2

Объявление №504689 - Продажа домов Дома, коттеджи

Тернопольская область, Тернопольский р-н, Гаи-Гречинские, Шевченка

+38 (067) 352-9204
Костишин Ліля, Посредник
Открыть контакты
+38 (067) 352-9204
Костишин Ліля, Посредник
4 052 940 грн

цена всего объекта:
$ 93000 / € 79020

Просмотров: 4912
Обновлено: 29 апр 2026

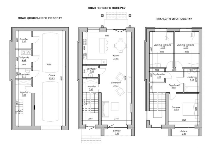
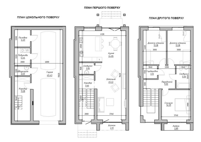
О доме: 193 м2, участок 2 соток;

Продається котедж в с.Гаї Гречинські 193м.кв.Цокольний поверх (висота стелі 2, 6м)- гараж на два автомобілі, побутове приміщення, пральня, санвузол. Перший поверх (висота стелі 2, 8м)- кухня, їдальня(з виходом на задній двір), вітальня(з каміном), санвузол. Другий поверх (висота стелі 2, 8м) - три спальні, гардеробна кімната, санвузол.
Обжитий спокійний район. Котедж цегляний, панельне перекриття, дах утеплений товщиною 20см, монолітні сходи, гіпсова штукатурка, розведена електрика. Ззовні завершені всі роботи, котедж готовий до чистового ремонту. Усі комунікації, світло 3 фази(лічильник день/ніч), інтернет, вода свердловина 73м. Усі документи готові(зданий).

Подробнее на сайте

image