Клубный дом Nobility квартиры от 3210 $/м2
ЖК Krona Park II от 890 $/м2, Бровары
ЖК Illinsky House от 3500 $/м2
Лучшие адвокаты найти или добавить
ЖК Industrial (Днепр) от $1000 за м2
Без ограничений после регистрации
ЖК Kandinsky Odesa квартиры от 2030 $/м2
ЖК Brother
Киев, Дарницкий район

Новая Дарница, ул. Ревуцкого, 1

Контакты продавца
Продажа: от 990 $/м2

Готовность: строится

Новостройка комфорт-класса

Просмотров: 494

Планировки квартир в ЖК Brother

В ЖК Brother проектом предусмотрены такие виды планировок квартир:

  • однокомнатные квартиры от 32 до 52 м2
  • двухкомнатные квартиры от 58 до 74 м2
  • трехкомнатные квартиры от 87 до 97 м2
  • нежилой фонд от 107 до 1329 м2

Кликните на миниатюре, чтобы посмотреть ее в увеличенном размере

1-комнатные 32.08 м2 1-комнатные 41.68 м2
1-комнатные квартиры 32.08 м2 в ЖК Brother 1-комнатные квартиры 41.68 м2 в ЖК Brother
   
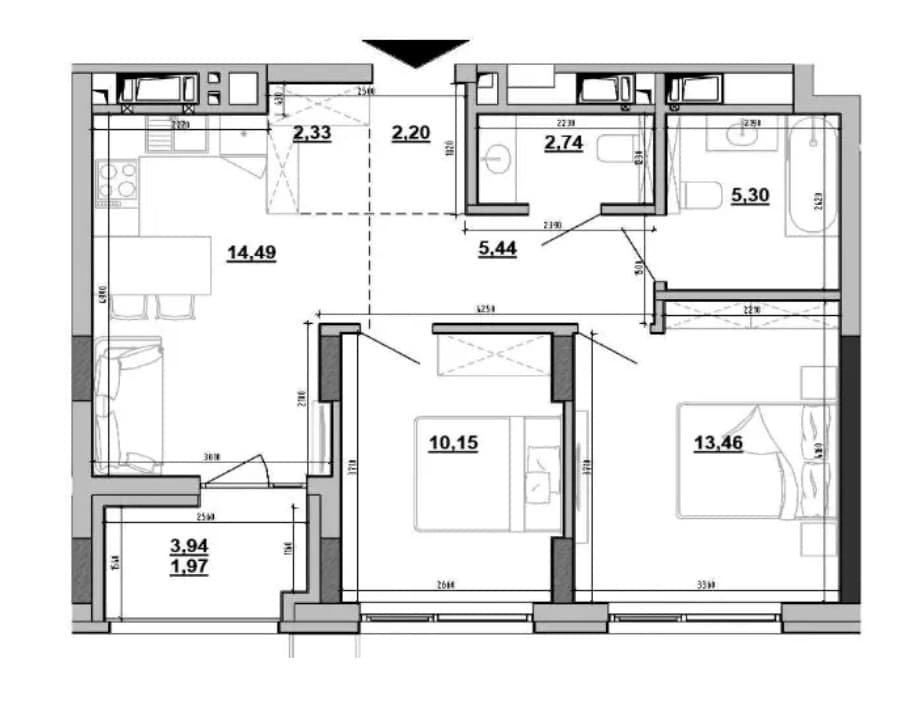
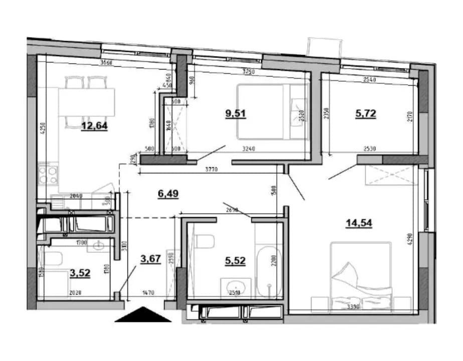
2-комнатные 58.08 м2 2-комнатные 61.61 м2
2-комнатные квартиры 58.08 м2 в ЖК Brother 2-комнатные квартиры 61.61 м2 в ЖК Brother
   
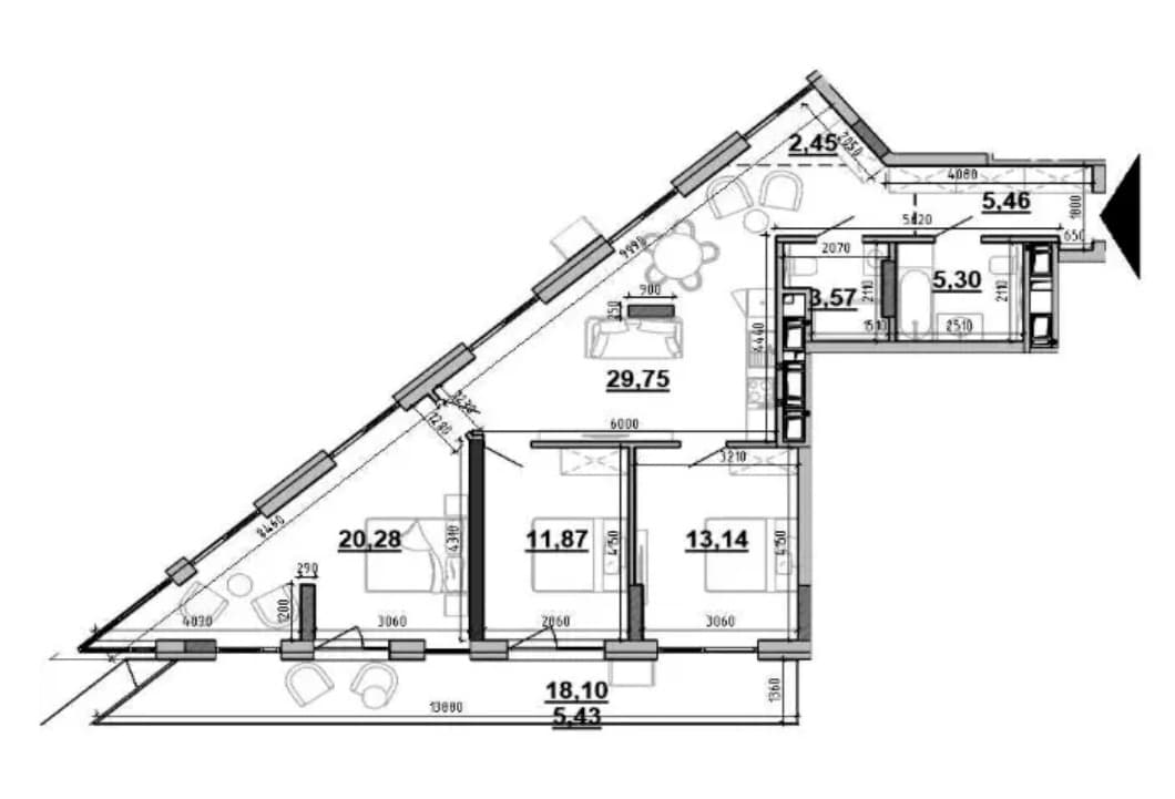
3-комнатные 92.63 м2 3-комнатные 97.25 м2
3-комнатные квартиры 92.63 м2 в ЖК Brother 3-комнатные квартиры 92.63 м2 в ЖК Brother
   
image