Клубный дом Nobility квартиры от 3210 $/м2
Без ограничений после регистрации
ЖК Illinsky House от 3500 $/м2
ЖК Krona Park II от 890 $/м2, Бровары
ЖК Kandinsky Odesa квартиры от 2030 $/м2
Лучшие адвокаты найти или добавить
ЖК Industrial (Днепр) от $1000 за м2
Таунхаусы Park Golosievo
Киев, Голосеевский район

пер.Черешневый, 7А

Контакты продавца
Продажа: 250000 $

Готовность: строится

Удаленность до 5 км

Просмотров: 1240

Таунхаусы Park Golosievo

Расположение: Киев, Голосеевский район, микрорайон Мышеловка, пер.Черешневый, 7А - смотреть на карте

Застройщик и девелопер: Rise and Development

Состояние: строится, запланированная сдача - 4 квартал 2025 года

Условия покупки

  • Рассрочка от застройщика: на 1 год, первый взнос от 30%
  • Ипотека «єОселя»: недоступна
  • єВідновлення: недоступно

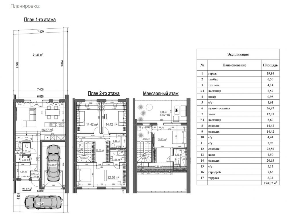
Характеристики комплекса Park Golosievo

  • Тип недвижимости: таунхаусы
  • Класс: премиум
  • Кол-во таунхаусов: 4
  • Количество этажей: не указано
  • Площадь каждого таунхауса: 194 м²
  • Придомовой участок: от 2 до 4 соток
  • Площадь территории проекта: 0.2 га
  • Ремонт: без отделки
  • Стены: кирпич
  • Утепление: базальтовая вата (плита)
  • Тип отопления: тепловой насос
  • Водоснабжение: автономное
  • Канализация: септик
  • Территория: закрытая для авто и посторонних

Инфраструктура возле ЖК «Park Golosievo»

Комплекс таунхаусов «Park Golosievo» расположен в зелёной части Голосеевского района Киева — микрорайоне Мышеловка. Это малозастроенная зона с хорошей экологией, тишиной и близостью к природе. В пешей доступности — водоёмы, магазины и образовательные учреждения.

В радиусе до 1,5 км от комплекса находятся:

  • супермаркет «АТБ-Маркет» — 650 м,
  • АЗК WOG — 350 м,
  • Голосеевские ставки и озеро Спортивное — около 750 м,
  • детский сад и начальная школа «Активити» — 450 м,
  • детский сад «Казковий Замок» — 1,2 км,
  • детский сад № 312 — 1,3 км,
  • отделение Новой почты № 298 — ул. Заболотного,
  • школа № 286 — около 2 км,
  • Голосеевская поликлиника — около 10 минут на авто.

Также поблизости:

  • приватная школа полного дня «КМДШ (Creativeschool)» — 2,9 км,
  • канатный парк и горнолыжный комплекс «Голосеево» — около 3 км,
  • ТРЦ Ocean Plaza — 4,8 км,
  • Хрещатик и центр Киева — около 8,5 км.

Плюсы: зелёная зона, наличие детских учреждений, близость к водоёмам и лесу.
Минусы: в пешей доступности ограниченное количество торговых точек и сервисов.

image