ЖК Illinsky House от 3500 $/м2
Клубный дом Nobility квартиры от 3210 $/м2
ЖК Kandinsky Odesa квартиры от 2030 $/м2
ЖК Industrial (Днепр) от $1000 за м2
Без ограничений после регистрации
Лучшие адвокаты найти или добавить
ЖК Krona Park II от 890 $/м2, Бровары

Объявление №353069 - Сдам помещение Имущ.компл

Харьков, Слободской р-н, проспект Байрона (ект Героїв Сталінграда), 23А

+38 (044) 594-1109
АБ "УКРГАЗБАНК", Хозяин
Открыть контакты
+38 (044) 594-1109
АБ "УКРГАЗБАНК", Хозяин
1 533 грн/мес

цена всего объекта:
$ 35 / € 30

Просмотров: 2
Обновлено: 15 апр 2026

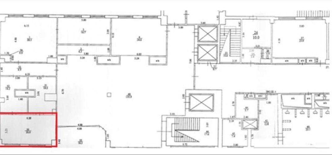
О доме: 1/8 эт.

Помещение: 20м2

as995629. АБ УКРГАЗБАНК оголошує про передачу нерухомого майна в оренду на аукціоні, а саме щодо укладання договору оренди (тимчасового платного користування) нежитлового приміщення №50, площею 20,0 кв. м, що знаходиться на першому поверсі нежитлової будівлі літ. А-8, загальною площею 7 744,80 кв.м, за адресою: м. Харків, проспект Байрона (стара назва - проспект Героїв Сталінграда) буд. 23-А, відповідно до Схеми меж оренди.
Стартова орендна плата, грн./міс - 1533,60 грн (одна тисяча п’ятсот тридцять три грн 60 коп.), з
ПДВ.
Детальніше з умовами укладання договору оренди можна ознайомитись за посиланням:

Подробнее на сайте

image