ЖК Kandinsky Odesa квартиры от 2030 $/м2
Клубный дом Nobility квартиры от 3210 $/м2
ЖК Industrial (Днепр) от $1000 за м2
Лучшие адвокаты найти или добавить
ЖК Illinsky House от 3500 $/м2
Без ограничений после регистрации
ЖК Krona Park II от 890 $/м2, Бровары

Объявление №247495 - Продам помещение Офисы

Киев, Шевченковский р-н, Центр, Дмитриевская ул., 18/24

+38 (050) 312-3550
Марина, Посредник
Открыть контакты
+38 (050) 312-3550
Марина, Посредник
52 296 грн/м2, без комиссии

цена всего объекта:
$ 1284000 / € 1090987

Просмотров: 11
Обновлено: 22 апр 2026

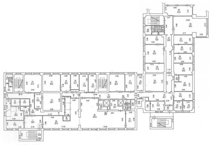
Без %! Приміщення 1070м центр Дмитрівська 18/24 Вокзаль

О доме: 2/10 эт., кирпич, дом сдан, есть охрана, парковка

Помещение: 1070м2, после косметики

Без %! Приміщення 1070м центр Дмитрівська 18/24 Вокзальна Університет!

Шевченківський р-он, вул. Дмитрівська, 18/24

Офісна будівля в діловому центрі Києва!
Кутове фасадне приміщення.
2 окремі входи.
2/10
Загальна площа 1070 кв.м.
В приміщенні опенспейс, кабінетна система, техн.приміщення, кухня, с/в.
Можливе перепланування.
Стан: після косметичного ремонту.

Комунікації: центр.опалення, електрика 90 кВт, система кондиціонування.
Охоронна та пожежна сигналізація.
Закрита територія під охороною.
Парковка біля будівлі.

Поруч зупинка транспорту, вся інфраструктура.
1,2 км 12 хв м. Університет та м. Вокзальна.

Ціна 1 200 у.е за кв.м без ПДВ. Без комісії!

image