Клубный дом Nobility квартиры от 3210 $/м2
Без ограничений после регистрации
ЖК Krona Park II от 890 $/м2, Бровары
ЖК Industrial (Днепр) от $1000 за м2
ЖК Kandinsky Odesa квартиры от 2030 $/м2
ЖК Illinsky House от 3500 $/м2
Лучшие адвокаты найти или добавить

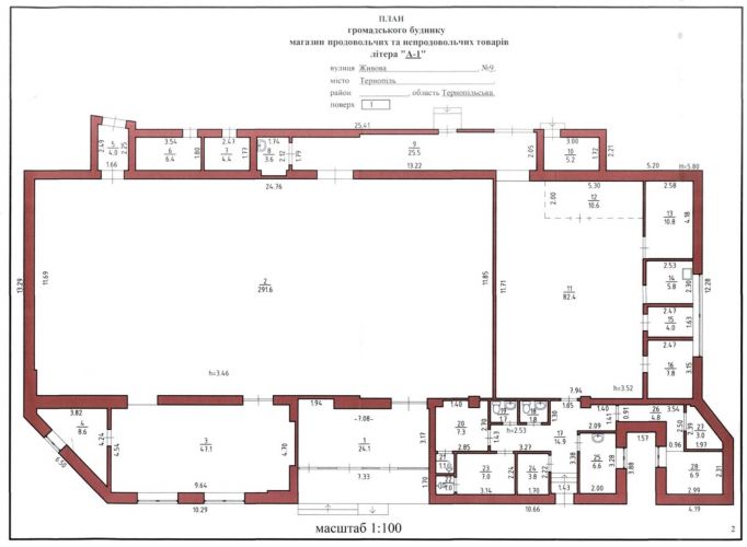
Объявление №245402 - Продам помещение Офисы

+38 (067) 470-5787, +38 (099) 114-9040
Бранець Христина, Посредник
Открыть контакты
+38 (067) 470-5787, +38 (099) 114-9040
Бранець Христина, Посредник
26 226 444 грн

цена всего объекта:
$ 601800 / € 511336

Просмотров: 1217
Обновлено: 11 мая 2026
image