ЖК Kandinsky Odesa квартиры от 2030 $/м2
Клубный дом Nobility квартиры от 3210 $/м2
Без ограничений после регистрации
Лучшие адвокаты найти или добавить
ЖК Industrial (Днепр) от $1000 за м2
ЖК Krona Park II от 890 $/м2, Бровары
ЖК Illinsky House от 3500 $/м2
53

Объявление №2994421 - Продам квартиру 3 ком.

Киев, Подольский р-н, Вышгородский массив, Вышгородская ул., 45г

+38 (068) 707-7070, +38 (066) 783-3348
Ольга Мусатюк, Посредник
Открыть контакты
+38 (068) 707-7070, +38 (066) 783-3348
Ольга Мусатюк, Посредник
5 665 400 грн

цена всего объекта:
$ 130000 / € 110458

Просмотров: 216
Обновлено: 20 апр 2026

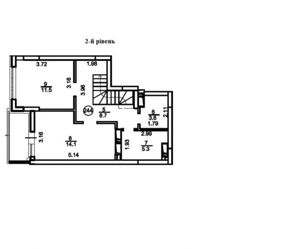
О доме: 25/27 эт.

О квартире: 94/40/36м2

3-кімнатна квартира, Вишгородська , 45г, Подільський район. Метраж 25/27.
Продам шикарну 3х кімнатну квартиру ЖК Паркове Місто вул. Вишгородська 45 Г. Площа квартири 94м2 - двохрівнева із прекрасним видом на парк.
Розташовується на 25-26 поверхах. 1 поверх вміщує велику кухню студію 38м2 + балкон 3.8м2 який можна об‘єднати, санузл, коридор. 2 й поверх - дві кімнати (спальня, дитяча), гардеробна, санузл, + ще один великий балкон. Сходи залиті. Індивідуальні лічильники тепла, електрики води, світла, не високий тариф за прибудинкову територію. У комплексі одна з найкращих закритих територій в Києві для життя, дитячі майданчики, зелений ландшафт, підземні паркінги, два озера, футбольне, баскетбольне поле, два тенісні корти, чудова паркова зона із заповідником. Чудова інфрастуктура : безліч салонів красоти, магазинів, супермаркет Вапус одразу біля центрального входу, цілодобова охорона усієї території. 4 ліфти відомої фірми Schindler (швидкісні та тихі). 25 сек і ви дома.
Будинок зданий в експлуатацію 2022р, всі документи на руках без ремонту..

Подробнее на сайте

image