Клубный дом Nobility квартиры от 3210 $/м2
Без ограничений после регистрации
ЖК Krona Park II от 890 $/м2, Бровары
Лучшие адвокаты найти или добавить
ЖК Kandinsky Odesa квартиры от 2030 $/м2
ЖК Illinsky House от 3500 $/м2
ЖК Industrial (Днепр) от $1000 за м2

Объявление №2992803 - Продам квартиру 4-ком.+

Киев, Оболонский р-н, Оболонь, Электриков ул.

+38 (050) 312-3550
Марина, Посредник
Открыть контакты
+38 (050) 312-3550
Марина, Посредник
91 518 000 грн, без комиссии

цена всего объекта:
$ 2100000 / € 1784324

Просмотров: 286
Обновлено: 23 янв 2026

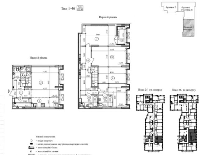
Без %! Видовий пентхаус 123м Док 32 Електриків

О доме: 25/26 эт., монолит, в доме лифт, новый, дом сдан, Dock 32, парковка

О квартире: 123/76/6м2, без отделки, комнаты раздельные, 3 с/у, лоджия, окна на улицу, свободная планировка

Без %! Видовий пентхаус 123м Док 32 Електриків Рибальський острів!

Оболонський р-он, Набережно – Рибальська дорога, 27 ( Електриків ) Рибальський острів

Видовий пентхаус на Дніпро!
Новий проект від надійного і якісного забудовника Ковальська біля Дніпра на Рибальському острові!
ЖК Dock 32 комфорт класу.
Будинок введено в експлуатацію!

Секція 1.
Панорамне скління.
2 рівнева квартира
25 - 26 /26
Площа 123,3 / 76,2 / 6,3 кв.м. Одностороння.
У квартирі простора кухня, 4 окремі кімнати, 3 с/в, комора, лоджія.

Стан: Після забудовників.
Комунікації: всі міські комунікації, авт..опалення в будинку.
Стильне лобі, зона відпочинку, дитячий майданчик.
Підземний паркінг. Гостьова парковка.
Територія під охороною. Відеонагляд.

Поруч ТРЦ Блокбастер, Епіцентр, вся інфраструктура.
2,8 км м. Почайна..

Право власності отримано
Додатково оплачується 2%.

Ціна 210 000 у.е. Без комісії!

image