ЖК Kandinsky Odesa квартиры от 2030 $/м2
Клубный дом Nobility квартиры от 3210 $/м2
Лучшие адвокаты найти или добавить
ЖК Krona Park II от 890 $/м2, Бровары
ЖК Illinsky House от 3500 $/м2
Без ограничений после регистрации
ЖК Industrial (Днепр) от $1000 за м2

Объявление №517794 - Продажа домов Дома, коттеджи

Тернопольская область, Тернопольский р-н, Байковцы, Богдана Хмельницького вул

+38 (067) 470-5787, +38 (099) 114-9040
Бранець Христина, Посредник
Открыть контакты
+38 (067) 470-5787, +38 (099) 114-9040
Бранець Христина, Посредник
5 447 500 грн

цена всего объекта:
$ 125000 / € 106210

Просмотров: 454
Обновлено: 08 мая 2026

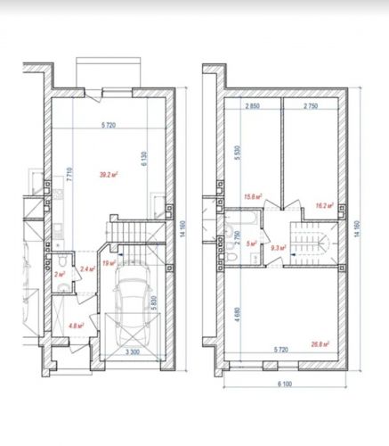
О доме: 140 м2, участок 3 соток;

Пропонується на продаж таунхаус у Байківцях.
Цегляний двоповерховий будинок гарного планування. Загальна площа 140 кв.м, на першому поверсі гараж, коридор, санвузол і простора кухня-студія 39 кв.м.
На другому поверсі - 3 кімнати площами - 27 кв.м, 16 кв.м і 16 кв.м, коридор , ще один санвузол і балкон( планування і макет будинку додаються)
Земельна ділянка - 3, 5 сотих,
Скважина, септик, чорнова стяжка. Висота стелі - 2, 6 м.

Подробнее на сайте

image