ЖК Industrial (Днепр) от $1000 за м2
Без ограничений после регистрации
ЖК Kandinsky Odesa квартиры от 2030 $/м2
Клубный дом Nobility квартиры от 3210 $/м2
ЖК Illinsky House от 3500 $/м2
ЖК Krona Park II от 890 $/м2, Бровары
Лучшие адвокаты найти или добавить

Объявление №352958 - Сдам помещение Офисы

Киев, Подольский р-н, Подол, Сковороды Григория ул., 7

+38 (093) 625-2616
Виктор, Посредник
Открыть контакты
+38 (093) 625-2616
Виктор, Посредник
10 000 грн/мес

цена всего объекта:
$ 229 / € 195

Просмотров: 247
Обновлено: 27 апр 2026

О доме: 1/5 эт.

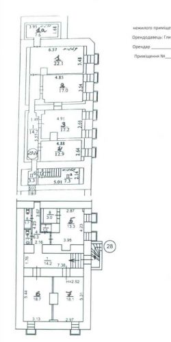
Помещение: 18м2

Здається кабінет у нежитловому фонді ідеальне рішення для роботи в центрі міста. В оренду пропонується просторий кабінет площею 18.7м, розташований за адресою вул. Григорія Сковороди, 7 лише 5 хвилин пішки від метро Контрактова площа. Приміщення знаходиться у нежитловому фонді, що відкриває широкі можливості для бізнесу. Офісний блок розташований на безпечному цокольному поверсі міні-бізнес-центру з приємною атмосферою та відмінними сусідами у нас тихо, спокійно та по-діловому затишно. Тут працюють представники різних професій: юристи, бухгалтери, психологи, інтернет-магазини, майстри послуг та креативні фахівці. Переваги: Свіжий ремонт заїжджайте та починайте роботу відразу Завжди є електроенергія та стабільний інтернет Кондиціонер у кабінеті Загальна охоронна сигналізація Два входи, два санвузли Вікна виходять на фасад будинку . Можливість розміщення реклами на фасаді У загальному користуванні холодильник та мікрохвильова піч Комунальні включають прибирання раз на тиждень Ідеально підійде під: офіс, масажний чи косметологічний кабінет, манікюр, юридичні та бухгалтерські послуги, консультації, інтернет-магазин та багато іншого. Вартість всього 10 000 грн/міс + комунальні Без комісії для орендаря На плануванні кабінет за

номером 6 Без комиссии.

Подробнее на сайте

image